【摘要】上海某筒仓,为某码头改造项目其中一幢建筑,业主拟对该筒仓进行改造开发建设,同时为规划保留建筑的保护性改造提供房屋质量的基础资料。本报告对结构的改变、损伤、倾斜、不均匀沉降、混凝土强度、构件尺寸和配筋等进行复核调查,对结构建立计算分析模型,对现有结构承载力进行验算,给出检测结论。
1.检测目的、范围
为配合某码头改造项目的开发建设,同时为规划保留建筑的保护性改造提供房屋质量的基础资料,受业主委托对上述建(构)筑物进行安全检测。
被检测建(构)筑物总平面见图1-1。
本报告对象为八万吨筒仓。

2.主要检测内容
1) 调查、摸清房屋的建筑、结构情况和使用情况,包括实际组成、结构形式、结构布置、构件类型、连接构造等;
2) 检测房屋建筑、结构的缺陷和损伤,并分析各类缺陷和损伤对结构性能的影响和产生原因;
3) 对该建筑的主要结构构件进行材料强度检测;
4) 建筑变形测量;
5) 正常使用荷载下结构承载力分析;
6) 按照现行国家和地方标准,根据现场检测结果、委托方提供的图纸资料及结构验算结果,确定房屋结构安全性,提出使用、维修、加固的措施和建议。
4.房屋基本情况
房屋名称:八万吨筒仓
结构类型:钢筋混凝土筒仓结构
房屋设计日期:1991年


1)筒仓
筒仓建筑平面近似矩形,由3排10列、共30个内径为12m的标准单仓及18个内径为5.14m的星仓组成,东西向总长124.2m,南北向总宽37.2m。仓壁结构底部标高为10.8m,仓顶标高为39.3m;仓上建筑物为单层房屋,屋面标高为48m。
标准单仓由支撑结构、仓壁结构、漏斗结构和仓顶组成。支撑结构为钢筋混凝土支柱,支柱截面尺寸为850mm×850mm、850mm×1700mm,混凝土柱纵筋分别为3232、5832,8@200复合箍筋。仓壁内径为12m,壁厚为210mm,仓壁高28.5m;仓壁按照高度分段配筋,内仓壁自下至上分为四段,标高10.160m~20.300m水平环筋、垂直钢筋分别为214@100、214@200,标高20.300m ~25.050m水平环筋、垂直钢筋分别为214@125、214@200,标高25.050m ~29.800m水平环筋、垂直钢筋分别为212@125、212@200,标高29.800m ~39.300m水平环筋、垂直钢筋分别为212@150、212@200;外仓壁自下至上分为五段,标高10.160m~20.300m水平环筋、垂直钢筋分别为216@100、214@150,标高20.300m ~25.050m水平环筋、垂直钢筋分别为216@120、214@150,标高25.050m ~29.800m水平环筋、垂直钢筋分别为214@100、212@150,标高29.800m ~34.550m水平环筋、垂直钢筋分别为214@120、212@150,标高34.550m ~39.300m水平环筋、垂直钢筋分别为212@120、212@150;仓壁下环梁截面尺寸主要为850mm×1260mm,梁底、梁顶钢筋均为1325,箍筋为8@200。漏斗结构为圆锥钢漏斗,筒仓钢漏斗高度为5.0m,钢板厚度为12mm;星仓钢漏斗高度为1.9m,钢板厚度为10mm。仓顶为井子梁、板结构,井子梁为桁架结构,东西向梁及南北向梁截面尺寸主要为350mm×1250mm的劲性梁;预制板楼盖。仓上建筑钢筋混凝土结构,混凝土梁的截面尺寸主要为300mm×1100mm、300mm×1300mm,预制板屋盖。
筒仓基础为钢筋混凝土桩筏基础,筏板厚度为1750mm。工程桩采用450mm×450mm预制钢筋混凝土方桩,为二节制作,上段15m,下段16.5m,桩编号为JZHb-45-1516.5C,混凝土标号为400级。
混凝土设计强度等级如下:
基础、筒仓支柱及仓壁:300号。
2)工作楼
工作楼为一幢地下一层、地上八层的钢筋混凝土结构房屋,建筑平面呈矩形,东西向为单跨,跨度为12.5m;南北向共6个开间,北起第三个开间尺寸为7.0m,其余开间尺寸均为5.5m,总长35m。房屋地下一层、一层、三层层高为4.5m,二层层高为6.0m,四~八层层高均为8.1m,总高55.5m。
工作楼结构以框架为主,南端楼梯间区域及部分外墙为剪力墙。混凝土柱的截面尺寸主要为600mm×1200mm,混凝土梁截面尺寸主要为350mm×1250mm、350mm×850mm。混凝土墙板厚度主要为220mm、240mm、350mm。现浇混凝土楼(屋)盖,楼板厚度主要为120mm。
基础为钢筋混凝土桩筏基础,地下室底板厚度为1100mm,工程桩采用450mm×450mm预制钢筋混凝土方桩,为二节制作,上段13m,下段14.8m,桩编号为JZHb-45-1314.8C,混凝土标号为400级。
混凝土设计强度等级如下:
根据委托方提供的图纸扫描件(图号:结施7,结施10),砼标号为300号;
根据委托方提供的图纸扫描件(图号:结施33),四层以下为C35,四层以上为C30。
5.现场检测
1、建筑、结构布置调查
在现场对房屋的建筑和结构布置进行了调查,采用激光测距仪(型号:PD-24,仪器编号:031-1) 抽查测量了部分轴线尺寸。
检测结果表明,房屋结构布置、轴线尺寸基本与委托方提供的图纸资料相符。
2、混凝土构件截面尺寸检测
现场用钢卷尺(型号:30m,仪器编号:016)抽样检测了部分结构构件的截面尺寸。
检测结果表明,房屋结构构件截面尺寸基本与委托方提供的图纸资料相符。
3、构件配筋抽样检测
为明确混凝土构件中钢筋配置情况,现场采用钢筋探测仪(型号:PROFOMETER-5s,仪器编号:002)对梁柱纵筋数量进行了探测,并局部凿除混凝土保护层用游标卡尺(仪器编号:030)测量钢筋直径。
经复核,混凝土构件配筋基本与委托方提供的图纸资料相符。
4、混凝土强度测试
为确定被检测房屋混凝土的抗压强度,采用超声回弹法并进行钻芯修正,按照《结构混凝土抗压强度检测技术规程—回弹法、超声回弹综合法、钻芯法》DG/TJ08-2020-2007规程进行混凝土强度现场抽样检测。
考虑到钻芯会对房屋结构产生一定的损坏,因此根据房屋建造年代,把同一时期建造房屋作为一个批次进行修正量计算。
具体检测结果见表 5-1~表5-2。



5、钢筋强度检测
根据《建筑结构检测技术标准》(GB/T 50344-2004),采用硬度法对混凝土构件中钢筋强度进行现场抽样检测。采用HL-300里氏硬度计检测钢筋表面里氏硬度,根据《金属里氏硬度试验方法》(GB/T 17394-1998)、《黑色金属硬度及强度换算值》(GB/T 1172-1999)、《钢筋混凝土用钢 第1部分:热轧光圆钢筋》(GB1499.1-2008)、《钢筋混凝土用钢 第2部分:热轧带肋钢筋》(GB1499.2-2007)评定钢筋的抗拉强度,具体检测结果见表5-3,测量结果含测量误差。

经检测,混凝土柱中钢筋抗拉强度相当于现行规范HRB335的强度要求,达到二级钢设计强度等级要求。
6、相对沉降测量
为了解该房屋的相对沉降情况,根据国家行业标准《建筑变形测量规范》JGJ8-2007,采用水准仪(型号:DZS2,仪器编号:005)测量房屋一层窗台的相对高差,测量结果见表5-4,测点布置图见图5-1,测量结果含施工和测量误差。

该厂房目前基础倾斜率最大值为3.274‰(S8和S9两点之间),小于《地基基础设计规范》(DGJ08-11-2010)关于排架结构基础倾斜率的限值4‰。
7、房屋整体倾斜检测
根据国家行业标准《建筑变形测量规范》JGJ8-2007,用J2-JDE经纬仪(编号003)采用投点法测量房屋倾斜率,测点布置见图5-2,测量结果见表5-5(结果含测量误差)。

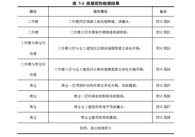
8、房屋完损检测
为明确房屋完损状况,现场对房屋建筑结构进行了完损检测。
经检测,工作楼室外楼梯混凝土构件存在铁胀、钢筋锈蚀现象,局部混凝土楼板存在收缩裂缝。
筒仓一层围护结构存在多处渗漏水现象,围护外墙局部开裂,内粉刷局部脱落;仓上建筑屋面天沟处及外墙多处渗漏水,内粉刷受潮、脱落;仓壁顶部局部露筋,钢筋锈蚀。
工作楼与筒仓间的房屋混凝土梁端与牛腿处存在开裂现象,平顶存在预制板缝、渗漏水现象,围护墙体多处开裂。
典型损坏情况如下表:


6.结构验算
6.1工作楼
6.1.1主要验算参数
根据《建筑结构荷载规范》(GB50009-2012)的规定,被检测房屋主要验算参数如下:
风荷载:基本风压0.55kN/m2,C类粗糙度;
二层~八层楼盖恒载:3.7 kN/m2;
屋面恒载:6.0kN/m2;
二层~八层楼面活载:5.0kN/m2(经试算,当楼面活载大于该值时,上部结构承载力不能满足现行规范要求);
屋面活载:2.0 kN/m2(上人屋面)。
其余参数均根据现行标准、现场检测结果取值。
不考虑地震作用。
6.1.2结构验算结果
验算按照《建筑结构荷载规范》(GB50009-2012)、《混凝土结构设计规范》(GB50010-2010)等现行地方和国家标准,采用中国建筑科学研究院结构研究所PKPM系列的SAT8等软件计算。
柱承载力验算
混凝土柱承载力基本满足要求。
梁承载力验算
混凝土梁承载力满足要求。
6.2筒仓
6.2.1主要验算参数
根据《建筑结构荷载规范》(GB50009-2012)、《钢筋混凝土筒仓设计规范》(GB50077-2003)的规定,被检测筒仓主要验算参数如下:
筒仓贮料:大米(常见粮食中密度最大);
贮料重力密度:8.5kN/m³;
内摩擦角:30°;
对混凝土板摩擦系数:0.42;
竖向压力修正系数:1.0;
仓壁保护层厚度按设计取值:20mm;
仓上建筑楼面恒载:5.5kN/m2,楼面活载:4.0kN/㎡;
仓上建筑屋面恒载:6.0kN/m2,屋面活载:0.5kN/m2;
风荷载:基本风压0.55kN/m2,C类粗糙度;
其余参数均根据现行标准、现场检测结果取值。
不考虑地震作用。
6.2.2结构验算结果
仓壁
按照《建筑结构荷载规范》(GB50009-2012)、《钢筋混凝土筒仓设计规范》(GB50077-2003)的规定等现行地方和国家标准,采用手算进行验算复核,验算结果见表 5-1~表 5-3。



7.结论及建议
c. 经复核,房屋结构布置、轴线尺寸、构件截面尺寸基本与委托方提供的测绘图纸资料基本相符。
d. 经混凝土强度检测,筒仓及仓上建筑混凝土强度推定值分别介于28.2MPa~31.1MPa、27.4MPa~29.2MPa,工作楼结构构件混凝土强度推定值介于26.5MPa~31.1MPa。
e. 经钢筋强度检测,混凝土构件中钢筋抗拉强度相当于现行规范HRB335的强度要求,达到二级钢设计强度等级要求。
f. 经完损检测,房屋主要存在混凝土构件铁胀、钢筋锈蚀、牛腿开裂、外墙和屋面渗漏水等损坏现象。
g. 根据测量结果,目前受检房屋整体倾斜方向不具有一致性,测点倾斜率介于0.63‰~1.67‰,倾斜率小于《地基基础设计规范》(DGJ08-11-2010)规定的限值4‰。
h. 经验算,在正常使用荷载下,工作楼楼面最大活载取值为5kN/m2,此时,房屋上部结构混凝土构件承载力基本满足要求;筒仓区域结构承载力基本满足要求。
i. 综上,在正常使用荷载下,目前房屋整体结构安全,但房屋存在混凝土构件铁胀、钢筋锈蚀、牛腿开裂等损坏现象,应进行对症加固、修缮。