1.检测概述
上海某寺院内第一、第二进殿堂,天王殿和大雄宝殿二幢房屋拟进行大修。因某佛寺为上海市第二批优秀历史建筑保护单位,为切实保护好优秀历史建筑,根据《上海市历史文化风貌区和优秀历史建筑保护条例》、《房屋质量检测规程》等有关条例规程的规定,上海某佛寺特委托房屋质量检测站对大雄宝殿和天王殿进行房屋质量综合检测,以明确房屋建筑结构现状,为房屋修缮提供依据。
由于房屋建造年代久远,原始图纸缺失,为满足房屋修缮需要,本次检测内容还包括天王殿、大雄宝殿两幢房屋的图纸测绘。
1.1 检测鉴定的范围
某佛寺分为前院和后院两大部分,南侧有一照壁。前院原有土地11.6亩,建筑面积8856平方米,基本上是以中轴线为对称分布的木结构仿古江南庙宇建筑院落。中轴线上依次有大照壁、天王殿、大雄宝殿、般若丈室。本次检测鉴定的范围为某佛寺的第一进殿堂天王殿、第二进殿堂大雄宝殿。
1.2保护级别、重点及要求
某佛寺于20世纪末上海市人民政府公布为第二批优秀历史建筑保护单位,保护级别为III级(上海市市级建筑保护单位)。天王殿、大雄宝殿的保护要求为二类,根据《上海市历史文化风貌区和优秀历史建筑保护条例》第二十五条规定,属二类保护要求的优秀历史建筑,建筑的立面和结构体系、平面布局和有特色的内部装饰不得改变。为明确重点保护部位,对房屋木构架、台基、轩廊等进行了详细检测,进一步明确和细化了重点保护部位及具体分布,确定天王殿、大雄宝殿重点保护部位如下:
天王殿:
1、东南西北各外立面,包括花窗;2、结构体系、基本平面布局;3、重檐歇山顶,包括屋面的吻兽、戗兽、脊兽、走兽、灰塑、花饰、宝顶;4、抬梁式木构架,包括柱、梁、枋、檩、椽、斗拱、柱础(鼓磴、磉石);5、檐廊,包括飞椽、单步梁、檐枋、挂落等;6、底层落地长窗、二层摇杆窗;7、原台基、石阶、地面金砖;8、南门外抱鼓石;9、内部有特色的装饰装修。
大雄宝殿:
1、东南西北各外立面,包括花窗和砖雕;2、结构体系、基本平面布局;3、重檐歇山顶,包括屋面的吻兽、戗兽、脊兽、走兽、灰塑、花饰;4、抬梁式木构架,包括柱、梁、枋、檩、椽、斗拱、柱础(鼓磴、磉石);5、檐廊,包括飞椽、单双步梁、檐枋、挂落等;6、底层落地长窗,上下屋面间直棂窗;7、原台基、石阶、地面金砖;8、勾阑,包括望柱石狮等;9、东西卷棚顶连廊,东西月洞门;10、内部藻井、彩绘天花及有特色的装饰装修。
1.3主要工作内容
本次检测鉴定主要工作内容包括:
1、建筑保护级别、重点及要求调查;2、历史沿革调查;3、建筑、结构概况调查; 4、房屋完损现状检测;5、房屋变形测量;6、材料强度检测;7、正常使用荷载下结构承载力分析;8、结构抗震性能分析;9、提出检测鉴定结论;10、提出处理建议。
2.房屋概况
2.1天王殿建筑概况
天王殿为某佛寺的第一进殿堂。这是一座两层楼的殿堂,座北朝南,略向东偏。正面开三个门,即为佛寺山门。天王殿主体两层,其沿街面按山门式样设置,东西长七间,面阔为25.85m,南北深四界,前后廊川,总进深为8.88m,两侧稍间各有楼梯一部。
底层地面皆铺方砖,内部步柱、金柱均有石质柱顶石,外檐柱无柱顶石,石鼓礅落在磉石上;底层四面皆有门,沿街明次间设三板门,东间有砖雕圆窗各一,临内院一面则在明次三间设长窗各6扇。二层东西长五间,南北深四界,其开间进深与底层相同,四面皆装宫式半窗,地面为木地板;后经装修将室内空间分隔成北侧外廊和若干房间,房间内增加铝合金窗和石膏板吊顶,作为办公用房。
天王殿底层檐采用斗拱形式,向内出十字拱以承梁底,梁端向外伸长并预收小减薄作云头;二层檐平身处无斗拱,仅柱头外用斗口跳,以云头挑梓桁。
天王殿外观属歇山式楼房,一层檐高5.1m,二层檐高4.75m;山花面为砖作,排水沟滴下刻出悬鱼、搏风板和山花板;屋面采用仰覆蝴蝶瓦,檐口部分有花和滴水;屋脊采用龙吻正脊、亮花筒垂脊和戗脊。
屋面工艺采用檩上设椽、飞椽,椽上铺木望板,望板上苫背,然后铺设屋面瓦件。
2.2大雄宝殿建筑概况
大雄宝殿是寺院建筑的主体部分。大雄宝殿为单层建筑,其东西长五间,面阔为24m,南北深六间,进深为18.34m;殿庭梁深内四界,前后双步,双步之外,复做廊川,廊川形成重檐的下檐。
台基高0.96m,台基周围有清式雕花栏杆围绕;台基地面为方砖铺地,外沿有阶条石。大雄宝殿底层檐采用十字式斗拱,平身科内外五出参,柱头科内为三出参,外为五出参,二层檐内外皆为三出参;外部昂为凤头昂,内部皆为枫拱。
大雄宝殿外观属重檐歇山式单层建筑,脊高18.27m;屋面采用仰覆蝴蝶瓦,檐口部分有花和滴水;屋脊采用龙吻正脊、亮花筒垂脊和戗脊;侧面排水沟滴下,以木板条钉出搏凤板,山花板退后600mm;上檐与下檐之间采用一圈直棂窗用于采光,上下檐戗脊均有兽五个。
屋面工艺采用檩上设椽、飞椽,椽上铺木望板,望板上苫背,然后铺设屋面瓦件。
2.3结构概况
(1)结构设计理念及特点
天王殿、大雄宝殿均为木结构,承重结构均为抬梁式木构架,屋架为歇山式木构架。东、西山墙均采用实心粘土青砖砌筑(天王殿楼梯间处部分新砌墙体采用标准红砖、混合砂浆砌筑);木结构主要采用抬梁式结构体系,在台基上筑础,立木柱,上施梁枋,梁上叠梁,逐级升高构成举架,举架向上支撑横向桁(檩),桁上架椽,椽上铺木望板,再苫背覆瓦。
天王殿、大雄宝殿均是以砖木为主材采用传统工艺建造而成的仿古建筑,其传力路径清晰、明确,非常适用于佛教建筑。
(2)台基
整个台基经过修缮后,天王殿和大雄宝殿新铺青色地砖,原磉石、鼓磴多数还保留,局部出新,局部更新。
(3)木构架
天王殿、大雄宝殿均为抬梁式木构架,主要构架见图2-1、2-2。
(4)局部墙体
天王殿、大雄宝殿外围墙体为自承重墙体,主要采用粘土青砖砌筑,局部后期修缮时采用过粘土红砖混砌,粘土青砖砌筑主要采用石灰混合砂浆,局部后砌粘土红砖采用水泥混合砂浆砌筑。砌筑青砖尺寸主要为240mm×115mm×50mm、210mm×110mm×35mm等。


3.图纸测绘
因天王殿、大雄宝殿建造年代久远,没有原始图纸,本次检测采用了徕卡HDS三维激光扫描仪、水准仪、全站仪、测厚仪、激光测距仪、卷尺等仪器设备,对天王殿、大雄宝殿的建筑、结构进行了现场测绘,并形成测绘图纸。
4.房屋完损现状检测
4.1天王殿完损现状检测
经检测,天王殿室外屋面存在屋脊局部开裂,走兽开裂、缺失,泥塑陈旧、部分开裂,瓦片局部松动、移位、缺损,局部屋面受潮生苔、生长植物,滴水瓦缺损,封檐板开裂等现象;部分檐柱受潮腐朽、油漆脱落,部分木柱存在干裂现象;部分挂落老化变形,部分外墙门洞上方存在竖向裂缝。室内存在地坪地砖磨损,部分金柱干裂,部分内墙门洞处开裂等现象;木望板局部损坏、脱落,部分节点存在脱榫现象。设施设备主要存在水龙头长期漏水、水管零乱等现象。
4.2大雄宝殿完损现状检测
经检测,大雄宝殿室外屋面存在屋脊局部开裂,走兽、泥塑开裂,瓦片松动、移位、缺损,屋面受潮生苔、生长植物,滴水瓦缺损,封檐板受潮、油漆脱落等现象;外廊栏杆局部开裂,部分雕刻开裂损坏;部分挂落凹凸变形,部分外墙门洞上方存在竖向裂缝。室内存在地坪地砖磨损,大堂部分雕塑老化损坏,屋面板底檩、椽、梁、斗拱干裂等现象;部分节点轻度脱榫,天花板存在局部脱裂现象。设备设施主要存在避雷设施陈旧,消防设施设备缺乏等损坏现象。
5.房屋变形测量
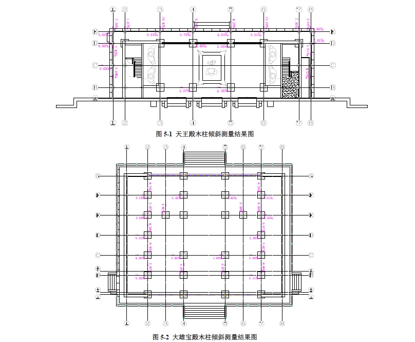
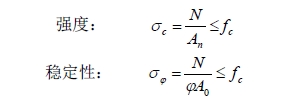
为掌握房屋目前倾斜情况,现场采用J2-2型经纬仪和JZC-D型工程质量检测器,根据《建筑变形测量规范》(JGJ8-2007),对天王殿和大雄宝殿木柱的垂直度进行了测量。
5.1木柱倾斜测量

测量结果表明,大雄宝殿木柱倾斜方向无一致性,所有金柱倾斜率上均小于上海市工程建设规范《优秀历史建筑修缮技术规程》(DGJ08-108-2004)规定的二级修缮的建筑总倾斜度限值10‰和层间倾斜度限值11‰。
5.2地面相对高差测量

大雄宝殿地面相对高差测量结果表明,大雄宝殿南北向为南低北高,相对倾斜率为4.15‰;东西向为东高西低,相对倾斜率为3.77‰;南侧轩廊东高西低,相对倾斜率为3.05‰;北侧轩廊西高东低,相对倾斜率为0.39‰;东西两侧轩廊均为南低北高,相对倾斜率分别为1.70‰,2.64‰。
5.3木梁挠度测量
采用高精度水准仪,测量木梁两端位移值和中间点的位移值,根据《建筑变形测量规范》(JGJ 8-2007),计算木梁跨中挠度值。


根据测量结果,天王殿、大雄宝殿所抽检的木梁挠度均在规范规定的范围内。
5.4变形测量结果综合分析结果
根据天王殿、大雄宝殿相对高差测量结果,天王殿台基南低北高、中间高东西两侧低,大雄宝殿南低北高、东高西低;台基有一定的不均匀沉降。
根据木柱倾斜测量结果,天王殿E/3处、E/6处檐柱向南倾斜较大,其倾斜率超过上海市工程建设规范《优秀历史建筑修缮技术规程》(DGJ08-108-2004)规定的一级修缮建筑总倾斜度限值7‰和层间倾斜度限值8‰,且超过二级修缮的建筑总倾斜度限值10‰和层间倾斜度限值11‰。天王殿E/3处、E/6处檐柱本身有一定的侧脚,同时台基南低北高、中间高东西两侧低的不均匀沉降也是导致其倾斜率较大的原因。
6.材性检测
6.1木材强度评估
经现场勘察,房屋主体结构木构件所采用的木材主要为杉木、粗皮松、细皮松,这三种木材新料的强度等级介于TC11A~TC13A之间。由于切取木材试样对房屋屋面结构损伤较大,依据《既有建筑物结构检测与评定标准》DB/TJ08-804-2005第4.9.5条及《民用建筑修缮工程查勘与设计规程》JGJ117-98第6.2.3条,选用旧木材作为承重构件或旧木结构构件,在验算时应视其材质、材种、材性和使用条件、部位、年限等情况,综合分析,强度设计值折减系数ψ可0.8,弹性模量折减系数ψ取0.8。
6.2砌筑砖强度检测
采用ZC4型砖回弹仪,参照《既有建筑物结构检测与评定标准》(DG/TJ08-804-2005)、《回弹仪评定烧结普通砖强度等级的方法》(JC/T796-1999)对天王殿和大雄宝殿砌筑砖强度进行了抽样检测。经检测,天王殿原有青砖砌筑砖强度等级为MU5,天王殿局部新砌所采用的标准红砖强度等级评定为MU10;大雄宝殿砌筑青砖强度等级为MU5。
6.3砌筑砂浆强度检测
采用SJY800A型贯入式砂浆强度检测仪,参照《贯入法检测砌筑砂浆抗压强度技术规程》(JGJ/T 136-2001)对有现场检测条件的砌筑砂浆强度进行了抽样检测。检测结果表明,天王殿原有墙体砌筑砂浆强度推定值介于0.4MPa~1.0MPa,天王殿局部新砌混合砂浆强度推定值为7.6MPa;大雄宝殿砌筑砂浆强度推定值介于0.7MPa ~1.1MPa。
7.正常使用荷载下结构承载力分析
7.1主要计算参数
根据现行国家标准《建筑结构荷载规范》(GB50009-2001 2006年版),楼(屋)面恒、活荷载取值如下:楼面恒荷载:1.5kN/m2;屋面恒荷载:1.5kN/m2;楼面活荷载:2.0kN/m2;不上人屋面活荷载:0.5kN/m2;材料强度:根据上述现场检测结果取值;其余参数均根据现行标准、现场检测结果取值。
7.2构件承载力分析
(1)木构件承载力验算
按照《建筑结构荷载规范》(GB50009-2001 2006版)、《木结构设计规范》(GB50005-2003 2005年版)等现行国家和地方标准,对天王殿、大雄宝殿受力较大的木椽条、木梁、木柱进行承载力及变形验算。验算公式如下:

经验算,在荷载效应基本组合作用下,天王殿、大雄宝殿木椽条、木梁、木柱的强度和稳定性均能满足要求。
(2)自承重墙安全性验算
按照《建筑结构荷载规范》(GB50009-2001 2006版)、《砌体结构设计规范》(GB50003-2001)等现行国家和地方标准,对天王殿、大雄宝殿自承重墙进行承载力计算。验算公式如下:

经验算,在荷载效应基本组合下,天王殿、大雄宝殿自承重墙的承载力满足要求。
8.结构抗震性能分析
根据国家标准《建筑抗震鉴定标准》(GB50023-2009)、《古建筑木结构维护与加固技术规范》(GB50165-92)对天王殿、大雄宝殿的抗震性能进行分析鉴定。
8.1抗震设防基本要求
抗震设防类别:丙类;抗震设防烈度:7度;基本地震加速度:0.10g;地震分组:第一组;场地:IV类。
8.2地基基础
根据《建筑抗震鉴定标准》(GB50023-2009)第4.2.2条规定,7度时地基基础现状无严重静荷载缺陷的丙类建筑可不进行地基基础的抗震鉴定。天王殿、大雄宝殿均符合上述条件,故可不进行地基基础的抗震鉴定。
8.3上部结构
(1) 木结构房屋的外观和内在质量


(3) 消防设施的现状和地震时的防火问题
根据《现有建筑抗震鉴定与加固规程》(DGJ08-81-2000)第9.0.3条,木结构房屋抗震鉴定时,尚应按有关规定检查消防设施的现状和地震时的防火问题。由于天王殿、大雄宝殿是以木构架为承重结构的仿古建筑,其耐火等级应为民用建筑四级,与现行国家标准有关规定相比,现有的防火措施尚存在不少差距:如未有足够宽的消防车道,没有安装火灾自动报警器和自动喷水灭火装置等,这些不足之处会产生一定的安全隐患,建议在修缮时予以改善。
8.4根据《古建筑木结构维护与加固技术规范》进行结构抗震性能分析
根据《古建筑木结构维护与加固技术规范》(GB50165-92,以下简称《加固规范》)第4.2.1条,抗震设防烈度为7度的古建筑木结构的抗震鉴定,除应符合现行国家标准《建筑抗震鉴定标准》的要求外,尚应按照《加固规范》4.1节的要求进行抗震构造鉴定。

8.5综述
综上所述,根据《建筑抗震鉴定标准》(GB50023-2009),并结合《古建筑木结构维护与加固技术规范》(GB50165-92),天王殿、大雄宝殿部分构造不满足抗震鉴定要求;天王殿部分檐柱存在腐朽、蛀蚀现象,影响构件抗震承载力;天王殿南立面、西立面以及大雄宝殿南立面东侧月洞门砖砌拱券中部存在竖向裂缝,影响抗震性能。
9.检测结论
1、上海某佛寺天王殿、大雄宝殿为上海市第二批优秀历史建筑保护单位,保护要求为二类,为木结构仿古江南庙宇建筑,主体结构采用抬梁式木构架,建筑和结构均有特色,具有一定的历史、科学和艺术价值。
2、经检测,天王殿、大雄宝殿外立面主要存在屋脊开裂,走兽开裂、缺失,泥塑陈旧、开裂,屋面瓦移位、缺损,屋面受潮生苔、生长植物,封檐板开裂、檐柱严重腐朽、油漆脱落,木柱存在干裂,挂落变形等损坏现象;内部存在地坪地砖大面积损坏,金柱干裂,屋面板底檩、椽、梁、斗拱部分干裂,木望板局部损坏,部分卯榫节点轻度脱榫、销子缺失,天花板局部脱裂,部分墙体门洞处开裂等损坏现象。
3、设施设备等完损检测结果表明,房屋管线零乱、避雷设施老化,消防系统不健全。
4、经检测,天王殿檐柱存在白蚁蛀蚀现象;天王殿、大雄宝殿屋面均存在生长苔藓、植物等损害现象。
5、建筑变形测量结果表明,天王殿南北向为南高北低,相对倾斜率2.41‰;东西向为中间高两侧低,相对倾斜率为2.57‰。天王殿3E处、6E处檐柱倾斜较大,其倾斜率大于上海市工程建设规范《优秀历史建筑修缮技术规程》(DGJ08-108-2004)规定的二级修缮的建筑总倾斜度限值10‰和层间倾斜度限值11‰。大雄宝殿所有金柱倾斜率基本上均小于上海市工程建设规范《优秀历史建筑修缮技术规程》(DGJ08-108-2004)规定的二级修缮的建筑总倾斜度限值10‰和层间倾斜度限值11‰。
6、经检测,天王殿原有青砖砌筑砖强度等级为MU5,天王殿局部新砌所采用的标准红砖强度等级评定为MU10;大雄宝殿砌筑青砖强度等级为MU5;天王殿原有墙体砌筑砂浆强度推定值介于0.4MPa~1.0MPa,天王殿局部新砌混合砂浆强度推定值为7.6MPa;大雄宝殿砌筑砂浆强度推定值介于0.7MPa ~1.1MPa。房屋主体结构木构件所采用的木材主要为杉木、粗皮松、细皮松,这三种木材新料的强度等级介于TC11A~TC13A之间;旧料构件强度设计值和弹性模量折减系数ψ宜取0.8。
7、经验算,在正常使用荷载下,天王殿、大雄宝殿木构件的承载力、自承重墙的受压承载力基本满足要求。
8、根据《建筑抗震鉴定标准》(GB50023-2009)、《古建筑木结构维护与加固技术规范》(GB50165-92),天王殿、大雄宝殿部分构造不满足抗震鉴定要求;天王殿部分檐柱存在腐朽、蛀蚀现象,影响构件抗震承载力;天王殿南立面、西立面以及大雄宝殿南立面东侧月洞门砖砌拱券中部存在竖向裂缝,影响抗震性能。
9、综上所述,在正常使用荷载下天王殿、大雄宝殿主体结构安全,但部分结构构件存在干裂、腐朽、蛀蚀等损坏,影响构件承载能力,屋顶及局部建筑和装饰存在严重损坏,宜对天王殿和大雄宝殿进行大修。修缮工程必须满足优秀历史建筑保护的相关规定,同时需重视白蚁防治、消防、防雷、抗震、绿化、环境整治等问题。
10.建议
1、天王殿、大雄宝殿具有一定的历史、科学和艺术价值,尤其是有特色的重点保护部位,应按照修旧如故的保护原则进行修缮。
2、建议本次修缮对屋顶进行整体翻修,在施工过程中进一步检查木结构构件损坏情况,对症修缮或加固;对部分倾斜较大的檐柱宜局部打牮拨正,对局部起皮、干裂、糟朽的构件根据损坏程度不同,可以采取填挠清除旧油灰皮、找补填砍至压麻灰或找补砍除旧地仗等工艺处理,必要时采取加箍等适当加固措施。地仗、油饰、粉刷等均宜采用传统工艺,需重视基层处理,并注意横砍竖挠、不伤木骨。
3、对木柱的干缩裂缝,当其深度不超过柱径(或该方向截面尺寸)的1/3时,可采用嵌补法进行休整。当裂缝宽度不大于3mm时,可在柱的油饰或断白过程中用腻子勾抹严实;当裂缝宽度在3~30mm时,可采用木条嵌补,并用耐水性胶粘剂粘牢,情况严重时可在柱的开裂段内加铁箍2~3道。
4、对木柱的腐朽,可将腐朽部分剔除干净,经防腐处理后,用干燥木材依原样和原尺寸修补整齐,并用耐水性胶粘剂粘接;如系周围剔补,尚需加设铁箍2~3道。
5、建议请专业单位进行全面白蚁防治和建筑外墙四周及屋面植物根茎彻底清除整治工作。
6、房屋修缮应尽力卸载,应采用轻质、防火材料,严格控制新增荷载。另外,还需严格控制、合理分布使用荷载,应制定规章制度以控制人流和使用荷载。
7、建议更新房屋配电等设施设备,并重新进行消防、防雷设计、施工。
8、修缮应请有资质的专业单位进行设计和施工,并报主管部门审批。修缮设计、施工均应保留完整的资料,修缮应按照修旧如故的保护原则进行,同时应保证结构安全,并考虑适当提高房屋抗震能力,重视并采取有效措施加强节点、围护结构及非结构构件与主体结构的连接等。